用來增壓的水泵被稱為增壓泵,立式多級管道增壓泵是本企業在結合國內外優秀泵型的基礎上,結合用戶的使用要求和消防使用標準,進行研發制造的新型多級增壓泵。立式多級增壓泵適用于高壓系統中,冷熱清水的循環和增壓、高層建筑多臺泵并聯供水、消防、鍋爐給水和冷卻水系統以及各種沖洗液的泵送等。增壓泵安裝時有哪些注意事項?下面進行簡要的講解。
增壓泵安裝注意事項
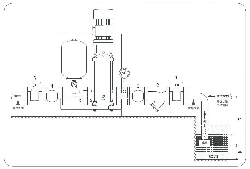
1.增壓泵的進口和出口都要裝配閥門,方便維護和調試。在液體增壓泵的進出口法蘭附近安裝一個壓力表,用來控制增壓泵在額定工況內有效運行。排出口如果安裝單向閥,應該裝在閘閥外面。
2.增壓泵安裝時需要保持水平狀態,否則會發生機械故障。水泵安裝過程中要輕拿輕放,否則底板會破裂。
3.增壓泵的吸入管路和排出管路系統應該有獨立的支撐架,不可以用泵體支撐。
4.增壓泵應該安裝在室內或者有遮擋的戶外場合,做到通風性良好,周圍不能有易燃和易爆等腐蝕性液體。
5.管路的螺紋或者法蘭接口處必須做到密封性良好,可以防止漏氣。
6.增壓泵安裝時,可以水平或者垂直安裝,水流方向必須與泵體上的箭頭方向一致,可以安裝在離水位較低的位置。
增壓泵安裝注意事項由水泵廠家總結。


IHF系列氟塑料襯里離心泵
FB全不銹鋼單級單吸耐腐蝕離心泵
FSB型氟塑料合金離心泵
